Wow, schaut super aus.
Mich würde interessieren, welche Vegetarion in Bild 2 verwendest (Gras und Büsche)?
Die Teckbahn (KBS. 761) Wendlingen - Kirchheim - Weilheim [Bautagebuch]
-
- eingestellt
- PlayerTV
- Geschlossen
-
-
Ich verwende für die Teckbahn viele Vegetarion Asset von vielen Anbieter z.B SAD (IKB V3 Reloaded), RLB und SWB (Vr Villingen Konstanz), Hamburg Hannover und Schienenbus Asset
-
-
Hast du ein Backup?
-
Leider nein
-
-
Tja, spontan würde ich sagen, wenn du keine Backups machst, hast du Pech gehabt. Backups zu machen ist mit unter eines der wichtigsten Dinge, wenn man eine Strecke bauen will, damit man sowas eben vermeiden kann.
-
Da kann man nur sagen: Pech gehabt. Dass der TS sowas gerne mal macht ist hinlänglich bekannt und Back-Ups daher obligatorisch.
Aber hey, so lernt man fürs nächste Mal! Nicht den Mut verlieren. -
Zarbex hat recht, ohne Backup lässt sich die Tracks.bin nicht wieder herstellen.
ich habe mir eine kleine bat-Datei geschrieben, die auf Knopfdruck alle streckenrelevanten Daten auf der Netzwerkfestplatte sichert. Das mache ich nach jedem Bautag, monatliche Backups dazu noch auf externer Festplatte und USB-Stick, falls mal der Blitz einschlägt und die Netzwerkfestplatte (NAS) abraucht.
Dirk
-
Bis zum Kirchheimer Bahnhof ist das Gleise legen nicht so schlimm weil sie alle mit bahndämen unterlegt sind
-
Sieh es als Chance dafür die Gleise noch besser zu legen.

-
-
So und jetzt die erste gute Nachricht die Gleise sind bis Kirchheim süd wiederhergestellt
-
Und jetzt die zweite gute Nachricht alle Gleise sind wieder hergestellt die Ausgestaltungs arbeiten werden wieder aufgenommen

-
Mach am besten gleich ein Backup...
-
Und für die Zukunft ein Tipp, dem ich heute einem Leidensgenossen geben habe: Bahnhof Rheda
-
Liebe Freunde des Rail-sim Forum
Heute habe ich eine kleine Radtour entlang der Strecke gemacht weil ich in letzter zeit die Geschindichkeitstafel für die KBS 761a Kirchheim Teck - Weilheim Teck aufgestellt habe allerdings haben einige der Schilder Beine und sind verwunden und ich kann die genauen Geschicklichkeiten deshalb in einigen abschnitten nicht bestimmen wenn mir da jemand weiterhelfen könnte würde ich mich sehr freuen
Hier die gefundenen schilder und Signale
Lf 4 mit folgendem Lf5 Reichung BfJesingen von Holzmaden kommend
Lf 4 Ursprüngliche Position unbekannt Gefunden kurz vor BfJesingen von Holzmaden kommend
Aktivierungsschalter und Überwachungssignal des BÜ Einsteinstraße Richtung Kirchheim aus Jesingen kommend
Würde mir wünschen wenn jemand mal den Aktivierungsschalter für den TS nachbautÜberwachungssignal des BÜ Einsteinstraße Richtung Jesingen aus Kirchheim Teck
Haltepunkt Ankündigungstafel Hp Bohnau aus Jesingen kommend
Alle Peiftafel und die Restlichen Geschwindigkeitstafeln sind teilweise auf dieser Webseite vermerkt
http://www.kbs761.synology.me/…cke/von-tkt-nach-weilheim -
-
Hallo zusammen,
heute möchte ich eine kleine Stellenausschreibung machen für Gebäude Objektbau. Ich such jemanden der für mich die Gebäude von den Zeichnungen der DB in 3D Modelle für den TS umsetzt oder der mir das 3D Zeichen
mit den Zeichen Programmen beibringt über eure Hilfe würde ich mich sehr freuen 
Hier wären die ersten drei Gebäude die umsetzt werden würden
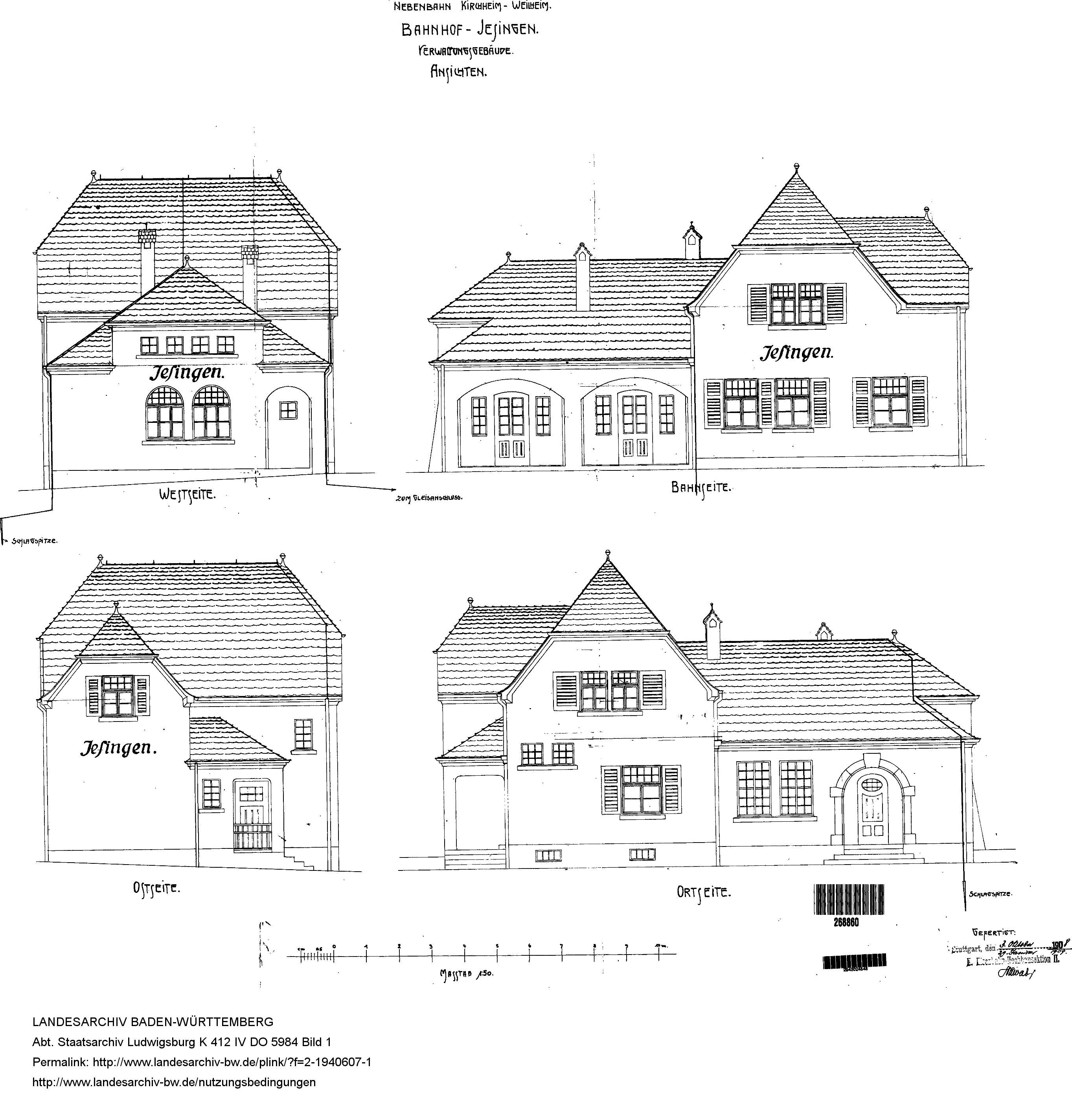
Bahnhof Holzmaden (gleiches Gebäude wie in Jesingen nur gespiegelt):
Güterschuppen Holzmaden/Jesingen:
Tipp für Gebäude und Gleispläne im Bereich der Reichs-/Bundesbahndirektion Stuttgart könnt ihr mal auf dieser Webseite vorbei schauen:
https://www2.landesarchiv-bw.d…igeKlassi=001.012.010.001 -
Zwar ist dieses Projekt seit August 2018 eingestellt aber dennoch geht es voran denn ich habe meine Fähigkeiten als 3D Modellbauer stark verbessert trotzdem werde ich dieses Projekt dennoch nicht im TS 2020 fortführen!
Aber vielleicht kehrt die Teckbahn eines Tages als strecke im TSW zurück falls es jemals einen Editor für uns User geben sollte.
Abschießend möchte ich einen Moderator bitten das Projekt zu offiziell Schließen.

Anmerkung: Latzes Modell gerade in Arbeit